112-116 Princes Highway, Fairy Meadow
Development
*** UNDER OFFER *** Highway Exposure Development Site with Current Income Stream
* Prime corner location next to Aldi
* 15m height limit with 1.5:1 Floor Space Ratio
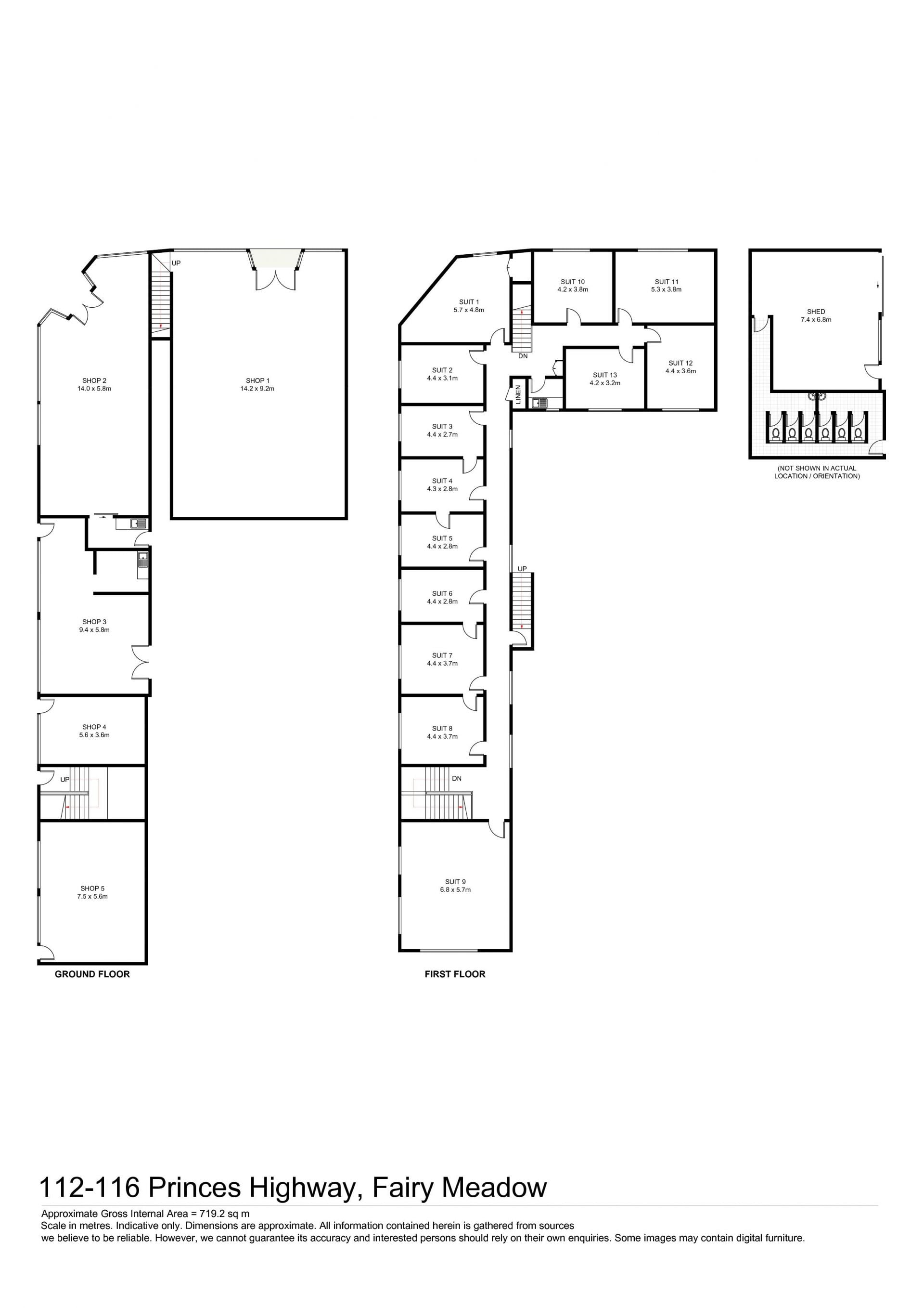
* Current short term leases in place for 13 x Offices and 5 x Retail Shops
* Currently returning approx $85,000 + GST NET
* Total Lettable area approx 589 sqm
* Potential opportunity to refurbish and gain increase in current rental income
* Across the road from Coles and 4 minutes north of Wollongong CBD
* 350m from Fairy Meadow Railway Station
* 15m height limit with 1.5:1 Floor Space Ratio
* Current short term leases in place for 13 x Offices and 5 x Retail Shops
* Currently returning approx $85,000 + GST NET
* Total Lettable area approx 589 sqm
* Potential opportunity to refurbish and gain increase in current rental income
* Across the road from Coles and 4 minutes north of Wollongong CBD
* 350m from Fairy Meadow Railway Station
