7/71 - 77 Kembla Street, Wollongong
Offices
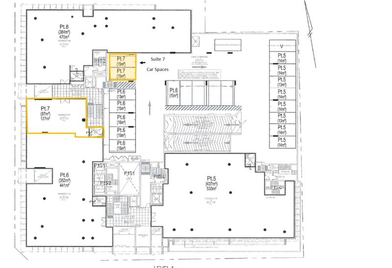
Brand New Office in CBD Location
* The Civic is Wollongong's newest architecturally designed building featuring two levels of Commercial /Office space.
* Suite 7 offers 97 sqm of open plan space to make your own and private bathroom facilities
* Key location opposite Woolworth's and just moments from Shopping Centre, Entertainment Facilities, food outlets and more.
* Offers two secure basement parking for two vehicles and private Commercial floor access
* Available as a warm shell, Lighting , Drop Ceiling and Air con.
* Potential to combine with Unit 8 to Lease - 380 sqm with 10 secure car spaces.
* Suite 7 offers 97 sqm of open plan space to make your own and private bathroom facilities
* Key location opposite Woolworth's and just moments from Shopping Centre, Entertainment Facilities, food outlets and more.
* Offers two secure basement parking for two vehicles and private Commercial floor access
* Available as a warm shell, Lighting , Drop Ceiling and Air con.
* Potential to combine with Unit 8 to Lease - 380 sqm with 10 secure car spaces.
