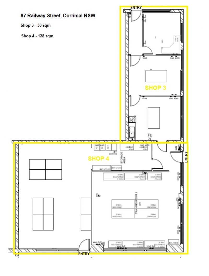
3/87 Railway Street, Corrimal
Offices
UNDER OFFER | High Traffic Office Space
* Located in the heart of Corrimal CBD
* Shop 3 - 50 sqm
* Would suit multiple business types - professional / consultancy / medical /retail
* Potential to retain current work stations or remove as needed
* Flexible and long term leases available for right tenant
* Shop 3 - 50 sqm
* Would suit multiple business types - professional / consultancy / medical /retail
* Potential to retain current work stations or remove as needed
* Flexible and long term leases available for right tenant
