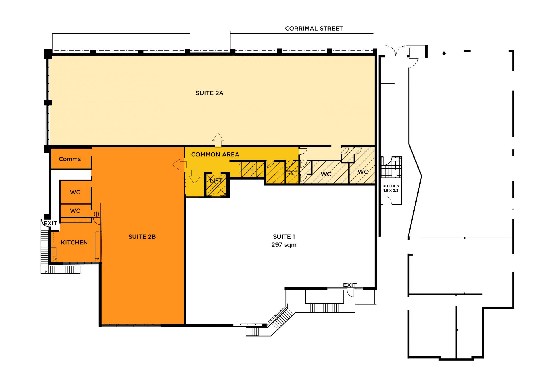
Suite 2B/94-98 Railway Street, Corrimal
Offices
Open Plan Corporate Office Space with abundant basement parking
- 285sqm of corporate open plan office space located on first floor
- Secure Building with abundant basement parking
- Recently refurbished with as new carpet throughout
- Ducted AC and security system in place
- Excellent disabled access with amenities and lift from basement
- Prime location and close to public transport & shops
- Opposite Stockland Corrimal Shopping Centre
- Secure Building with abundant basement parking
- Recently refurbished with as new carpet throughout
- Ducted AC and security system in place
- Excellent disabled access with amenities and lift from basement
- Prime location and close to public transport & shops
- Opposite Stockland Corrimal Shopping Centre
